?
首页
公司介绍
新闻中心
组织机构
服务理念
售后服务
联系我们
产品中心
jtgk.png

产品中心

Q11F两片式球阀

您的位置:阀门 - 球阀 - Q11F两片式球阀 更新时间:2025-07-09 08:07:07
Q11F两片式球阀
    • 质量安全:压力、材质、密封等全方位检测确保质量过关!
    • 价格比较:在相同品质的情况下,厂里直销,更具有优势!
    • 交货快捷:常规产品现货供应,生产加工销售一条龙服务!
      上海旺财28致力于高品质阀门的设计、研发、生产销售服务于一体的大型阀门企业,科技创新,永不止步,与您携手共创辉煌...

    • 产品描述
    • 在线询价
    • 技术咨询
    Q11F两片式球阀Q11F两片式球阀

    Q11F两片式球阀适用于PN1.0~6.4MPa,工作温度-29~180℃(密封圈为增强聚四氟乙烯)或-29~300℃(密封圈为对位聚苯)的各种管路上,用于截断或接通管路中的介质。选用不同的材质可分别适用于水、蒸汽、油品、硝酸、醋酸等多种介质。

    产品名称: 两片式球阀 产品型号: Q11F
    公称通径: DN6~DN100 结构形式: 球形
    公称压力: 1.6Mpa~6.4Mpa(W.O.G) 连接方式: 内螺纹
    适用温度: -20~232℃~350℃ 驱动方式: 手动、电动、气动
    阀体材质: 铸钢、不锈钢 制造标准: 国标GB、德国DIN、美国API、ANSI
    适用介质: 水、油、气及某些腐蚀性液体 生产厂家: 上海旺财28有限公司

    产品说明

    Q11F两片式球阀适用于PN1.0~6.4MPa,工作温度-29~180℃(密封圈为增强聚四氟乙烯)或-29~300℃(密封圈为对位聚苯)的各种管路上,用于截断或接通管路中的介质。选用不同的材质,可分别适用于水、蒸汽、油品、硝酸、醋酸等多种介质。

    产品特点

    两片式球阀阀体铸造采用台湾引进的先进工艺,结构合理、造型美观。阀座采用弹性密封结构,密封可靠,启闭轻松。 阀杆采用有倒密封的下装式结构,阀腔异常升压时,阀杆不会被冲出。二片式、三片式球阀连接形式另有对焊(BW)承插焊(SW),并均可带国际标准ISO支架平台和锁定装置。可设置90°开关定位机构,根据需要加锁以防止误操作,驱动方式:手动、电动、气动。

    产品特征

    公称压力 适用介质 适用稳定范围 螺纹类型
    1.6-6.4MPa 水、油、气及某些腐蚀性液体(W。O。G) -20~232℃~350℃ G。NPT。BSPT。BSP。DI259/2999

    主要技术参数

    公称通径 DN(mm) 6~100mm
    公称压力 PN(MPa) 2.5 4.0 6.4
    试验压力 强度试验压力 3.8 6.0 9.6
    高密封试验压力 3.0 4.8 7.6
    低压气密封试验压力 0.6 0.6 0.6
    适用介质 水、蒸汽、油品、酸类腐蚀性等。
    适用温度 < 150℃(PTFE) < 300℃(PLL)

    主要零件材料

    NO 零件名称 PART NAME 材料(MATERIAL)
    1 阀体 Body CF8M CF8 WCB
    2 阀盖 Cap CF8M CF8 WCB
    3 阀座 Seat RPTFE
    4 Ball SS304 SS316
    5 密封垫 Seal Gasket PTFE
    6 阀杆密封 Stem Seal PTFE
    7 阀杆 Stem SS316
    8 阀杆填料 Stem Packing PTFE
    9 填料压盖 Packing gland SS304
    10 弹性垫圈 Spring washer SS301
    11 手柄 Handle SS304
    12 螺母 Stem Nut SS304

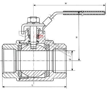
    外形结构图

     

    外形连接尺寸

    公称通径 结构长度(mm) 外形尺寸(mm) 参考重量
    毫米 英寸 L d H W (kg)
    6 1/4" 55  10  42 95 0.2
    10 3/8" 55 10 42 95 0.2
    15 1/2" 64 15 51 108 0.35
    20 3/4" 75 20 58 115 0.5
    25 1" 85 25 77 135 0.75
    32 1-1/4" 102 32 83 150 1.3
    40 1-1/2" 108 38 97 175 2.0
    50 2" 124 50 106 190 3.3
    65 2-1/2" 163 65 122 220 6.1
    80 3" 185 80 133 250 9.9

    声明:【Q11F两片式球阀】规格型号、结构尺寸由上海旺财28有限公司提供,如何选择适用的Q11F两片式球阀产品,使之在工艺控制中安全可靠、经济适用,可致电我司销售部门及技术部门,我们将在最短的时间内为您解答!

    上一篇:Q11F二片式球阀 下一篇:Q11F三片式球阀

    ?

    Copyright ?2011-2023 上海旺财28有限公司,版权所有。 沪ICP备11046016号-29 网站地图

    销售电话:021-31001158

    手机号码:13816746668 陈国辉/经理

    电子邮件:klkvalves@126.com@126.com

    主营产品:球阀,闸阀,蝶阀,截止阀,止回阀,调节阀

    本周热门:不锈钢阻火器全天候呼吸阀气动球阀气动蝶阀气动刀闸阀气动调节阀电动球阀电动蝶阀电动刀闸阀电动调节阀不锈钢球阀不锈钢闸阀不锈钢截止阀不锈钢止回阀不锈钢电磁阀高压电磁阀高压球阀波纹管截止阀

    官方网址:www.fm058.com